Reprezentanții CEETRUS se pregătesc să construiască cel mai mare cartier din municipiul Satu Mare construit în ultimele trei decenii. Potrivit informațiilor PresaSM, este vorba despre un cartier cu 23 de blocuri - 366 de apartamente, construite în mai multe etape, în imediata apropiere a Hypermarket-ului Auchan, în spatele Aushopping Satu Mare.
Zeci de blocuri, sute de apartamente
Cei de la CEETRUS vor construi un număr de 366 de apartamente, de la garsoniere, apartamente cu două sau cu trei camere, respectiv 612 locuri de parcare și inclusiv o grădiniță proprie. Proiectul dispune deja de terenul și sumele necesare, mai având nevoie doar de autorizația de construire.
Etapa 1 - 88 apartamente x 1,5 locuri parcare/apartament = 132 locuri parcare. Etapa 2 - 126 apartamente x 1,5 locuri parcare/apartament = 189 locuri parcare. Etapa 3 - 88 apartamente x 1,5 locuri parcare/apartament = 132 locuri parcare. Etapa 4 - 64 apartamente x 1,5 locuri parcare/apartament = 96 locuri parcare

Potrivit informațiilor PresaSM, proiectul de la Satu Mare va fi asemănător cu cel de la Brașov, dar investitorii își doresc ca el să fie adaptat specificului zonal și necesităților sătmărenilor.
FOTO: Așa arată proiectul de la Brașov, proiect dezvoltat de aceeași companie și la Satu Mare
Apartamente diverse, de la studio la penthouse
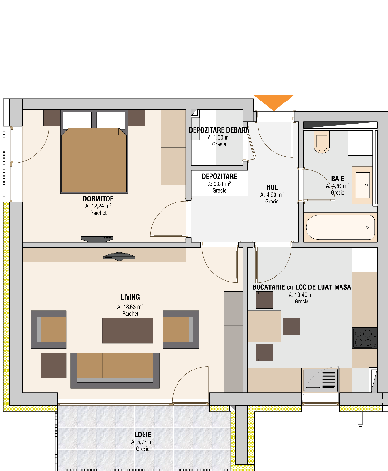
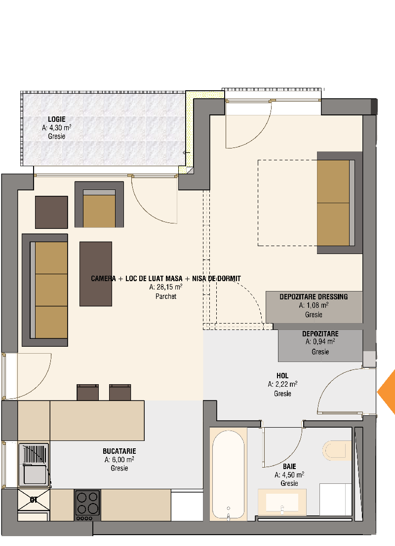
Apartamentele tip studio sunt cele mai mici, cu suprafețe cuprinse între 42 și 45 mp, dar vin la pachet cu o terasă de 3,42 mp, loc de parcare și boxă. Apartamentele de 2 camere dispun de o suprafață utilă de minim 51 mp la care se adaugă terasa, iar dezvoltatorii spun că sunt perfecte pentru tinerele familii, dar și pentu cei care doresc să facă investiții imobiliare.
Apartamentele cu trei camere sunt mult mai generoase, cu o suprafață utilă de peste 70 mp, ajungând până la peste 88 mp, iar prețul include boxă de depozitare și loc de parcare. Design-ul apartamentelor, indiferent că este vorba despre cele studio sau cele cu trei camere, este unul modern, prevăzut cu spații pentru depozitare și se axează pe planuri deschise, cu acces facil de la încăpere la alta.